Weboldalunk használatával jóváhagyja a cookie-k használatát a Cookie-kkal kapcsolatos irányelv értelmében.

Hansgrohe C51-F770-10 mosogató és csaptelep kombináció 370/370 szett 43221000

Hansgrohe
427.921 Ft (336.945 Ft + ÁFA)
Gyártó cikkszám: 43221000
Elérhetőség: Rendelésre
Kívánságlista Hogyan fizethetek?

Amennyiben kérdése van a termékkel kapcsolatban hívja kollégánkat a +3630-815-9597 számon!

Színinformation_mark
Fekete
427.921 Ft (336.945 Ft + ÁFA)

Azonnali segítség a vásárláshoz!

Hívja ügyfélszolgálatunkat, vagy írjon nekünk e-mailt.

Nyitvatartás: H-P 9:00 - 17:00

Leírás

Hansgrohe C51-F770-10 mosogató és csaptelep kombináció 370/370 szett 43221000
 
 
 
tartalmazza a következőket: beépített mosogató, 2-lyukú egykaros konyhai csaptelep, vezérlőegység, cső doboz, manuális le- és túlfolyógarnitúra
 
mosogatómedencék száma: 2 elsődleges mosogatómedence
 
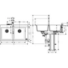
lyukak előre meg vannak határozva fúráshoz, lásd a méretrajzot
 
mosdó/mosogató mélysége: 190 mm
 
szekrény méret: 90 cm
 
beépítési mód: beépített
 
túlfolyó elhelyezkedése: a mosogatómedence jobb oldalán
 
csatlakozás módja: G ⅜ bekötőcsövek
 
átfolyási mennyiség 8 l/perc
 
átfolyós vízmelegítőkhöz alkalmas
 
kerámiabetét
 
MagFit mágneses zuhanytartó
 
integrált visszafolyásgátló
 
elfordulási tartomány 150°
 
normál vízsugár
 
ComfortZone 200
 
Select gomb: kényelmesen szabályozható a be/kikapcsoló gomb megnyomásával
 
csomagolás tartalmazza: sBox, ami egy konyhaszekrény alá szerelhető csővezető doboz. Ebben, a 76 cm-re kihúzható konyhai csaptelep csöve egy nehezékkel ellátott sínen fut, csendes és védett mozgást biztosítva.

Paraméterek

Kialakítás Kétmedencés
Forma Szögletes
Méret Mély mosogató
Csepptálcás mosogató Nem
Aláépíthető mosogató Nem
Szoknyás mosogató Nem
Modern mosogató Igen
Anyag Gránit

Szállítási információ

Általános kézbesítés 2-5 munkanap amennyiben a megrendelt termék van raktáron!

Előfordulhat, hogy a megrendelés leadásának időpontjában az adott termék raktáron lévő ként jelenik meg, de az esetleg már elfogyott, és csak a frissítések átfutási ideje miatt tűnik raktáron lévőnek, ebben az esetben a Vevő telefonos értesítést kap és eldöntheti, hogy eláll-e a rendeléstől!


Ingyenes kiszállítás kizárólag a megjelölt termékeinkre és 50.000 Ft feletti vásárlás esetén, Budapest körzetére vonatkozik! Ingyenesen szállítható termék mellé további olyan terméket rendel, aminek a szállítása nem ingyenes, szállítási díját értelemszerűen felszámoljuk. Kiszállítás a megadott szállítási címre főszabály szerint a főbejáratig / kapuig történik, az emeletre való felhordást a szállítási költség nem tartalmaza! Weboldalunkon kiválasztott és megrendelt terméket a Kereskedő a Megrendelőnek e-mailban küldött rendelési visszaigazolás után, a megrendelést követő 2-5 munkanapon belül (amennyiben a megrendelt termék raktáron van) a megrendelés során jelzett szállítási címre, házhoz szállítja a szállítmányozó cég (DPD. Tel: /06 1/ 5016200), Pannon Xp Kft. (Tel: /06 1/ 261-8472) vagy saját céges autónk igénybevételével. Kiszállítás a megadott szállítási címre főszabály szerint a főbejáratig / kapuig történik, az emeletre való felhordást a szállítási költség nem tartalmaza!

Törékeny termékek szállítását, CarryAll Hungary Kft. (ugyfelszolgalat@carryall.hu) szállító céggel végezzük a kellemetlenségek elkerülése végett. Az MPL szállítmányozó cég kiszállítása esetében a várható szállítási idő (amennyiben a megrendelt termék raktáron van) elérheti a 9-14 munkanapot is. A termék fuvardíja függ a termék nagyságától, árumennyiségtől és a szállítási cím távolságától. Kiszállítás a megadott szállítási címre főszabály szerint a főbejáratig / kapuig történik, az emeletre való felhordást a szállítási költség nem tartalmazza! A termék beérkezéséről, átvételéről kollégáink folyamatosan tájékoztatják Önt a megadott telefonszámon vagy e-mail címen. Fizetési lehetőség, Készpénzzel, Banki előre utalással, vagy Bankkártyával / az oldalunkon OTP Simple felületen/. A számlát minden esetben a termékkel együtt kapja meg a vásárló.

RENDELÉS LEMONDÁSA, ELÁLLÁS: Ezeket az Általános Szerződési Feltételekben rögzítettük (ÁSZF).

HÁZHOZ SZÁLLÍTÁSNÁL MIRE KELL FIGYELNI!

Nem szeretnénk vásárlóinknak kellemetlenséget és bosszúságot okozni, ezért szeretnénk tájékoztatni önöket, hogy a megrendelt termék átvételénél mire figyeljenek!
Feladás előtt Cégünk meggyőződik arról, hogy a termék sértetlen és minden tartozéka a csomagban van, csak ez után kerül a szállító cég kezébe. Innentől kezdve az Ő kezükben van, hogy a legnagyobb gonddal és körültekintéssel szállítsák ki a kívánt helyre. Sértetlen csomagolás esetén is lehet a kartondobozban, szállítás közben megsérült termék. A szállító cégeknek gyorsan kell dolgozniuk, hogy minél több árut eljuthassanak céljukhoz. Jellemző az "itt írják alá és már rohanok is tovább" mentalitás. Ne essenek bele ebbe a csapdába! Minden esetben a futár jelenlétében bontsák ki a csomagot és győződjenek meg a sértetlenségéről, hiánytalan meglétéről. Ha ugyanis hagyjuk, hogy a futár elmenjen és utána bontjuk ki a csomagot, akkor bizonyíthatatlan, hogy nem a távozása után sérült, tört el!
Sajnos ebben az esetben a vásárló az akinek a kárt viselnie kell! Ezért nagyon fontos, hogy minden esetben a futár jelenlétében bontsuk ki a megrendelt csomagot!