Weboldalunk használatával jóváhagyja a cookie-k használatát a Cookie-kkal kapcsolatos irányelv értelmében.

Hansgrohe C71-F450-12 mosogató és rozsdamentes acél csaptelep kombináció 450 szett 43230800

Hansgrohe
689.830 Ft (543.173 Ft + ÁFA)
Gyártó cikkszám: 43230800
Elérhetőség: Rendelésre
Kívánságlista Hogyan fizethetek?

Amennyiben kérdése van a termékkel kapcsolatban hívja kollégánkat a +3630-815-9597 számon!

Színinformation_mark
rozsdamentes acél hatású
689.830 Ft (543.173 Ft + ÁFA)

Azonnali segítség a vásárláshoz!

Hívja ügyfélszolgálatunkat, vagy írjon nekünk e-mailt.

Nyitvatartás: H-P 9:00 - 17:00

Leírás

Hansgrohe C71-F450-12 mosogató és rozsdamentes acél csaptelep kombináció 450 szett 43230800 


 


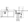
tartalmazza a következőket: beépített mosogató, 2-lyukú egykaros konyhai csaptelep, vezérlőegység, cső doboz, manuális le- és túlfolyógarnitúra


munkalap vastagsága: 25 mm


mosogatómedence anyaga: rozsdamentes acél


mosogatómedencék száma: 1 elsődleges mosogatómedence


a csaptelep lyuk és a vezérlő helye előre ki van fúrva


elhelyezkedés: elsődleges mosogatómedence a jobb oldalon


mosdó/mosogató mélysége: 190 mm


kivágási méretek: 1025 x 490 mm


szekrény méret: 60 cm


beépítési mód: munkalap síkjába vagy süllyesztett szereléssel


túlfolyó elhelyezkedése: a medence bal oldalán


sarokkerekítés sugara: 10 mm


csatlakozás módja: G ⅜ bekötőcsövek


átfolyási mennyiség 8 l/perc


átfolyós vízmelegítőkhöz alkalmas


kerámiabetét


MagFit mágneses zuhanytartó


integrált visszafolyásgátló


elfordulási tartomány 150°


normál vízsugár


ComfortZone 200


Select gomb: kényelmesen szabályozható a be/kikapcsoló gomb megnyomásával


csomagolás tartalmazza: sBox, ami egy konyhaszekrény alá szerelhető csővezető doboz. Ebben, a 76 cm-re kihúzható konyhai csaptelep csöve egy nehezékkel ellátott sínen fut, csendes és védett mozgást biztosítva.

Paraméterek

Kialakítás Egymedencés
Forma Szögletes
Méret Normál méretű mosogató
Csepptálcás mosogató Igen
Aláépíthető mosogató Nem
Szoknyás mosogató Nem
Modern mosogató Igen
Anyag Rozsdamentes acél

Szállítási információ

Általános kézbesítés 2-5 munkanap amennyiben a megrendelt termék van raktáron!

Előfordulhat, hogy a megrendelés leadásának időpontjában az adott termék raktáron lévő ként jelenik meg, de az esetleg már elfogyott, és csak a frissítések átfutási ideje miatt tűnik raktáron lévőnek, ebben az esetben a Vevő telefonos értesítést kap és eldöntheti, hogy eláll-e a rendeléstől!


Ingyenes kiszállítás kizárólag a megjelölt termékeinkre és 50.000 Ft feletti vásárlás esetén, Budapest körzetére vonatkozik! Ingyenesen szállítható termék mellé további olyan terméket rendel, aminek a szállítása nem ingyenes, szállítási díját értelemszerűen felszámoljuk. Kiszállítás a megadott szállítási címre főszabály szerint a főbejáratig / kapuig történik, az emeletre való felhordást a szállítási költség nem tartalmaza! Weboldalunkon kiválasztott és megrendelt terméket a Kereskedő a Megrendelőnek e-mailban küldött rendelési visszaigazolás után, a megrendelést követő 2-5 munkanapon belül (amennyiben a megrendelt termék raktáron van) a megrendelés során jelzett szállítási címre, házhoz szállítja a szállítmányozó cég (DPD. Tel: /06 1/ 5016200), Pannon Xp Kft. (Tel: /06 1/ 261-8472) vagy saját céges autónk igénybevételével. Kiszállítás a megadott szállítási címre főszabály szerint a főbejáratig / kapuig történik, az emeletre való felhordást a szállítási költség nem tartalmaza!

Törékeny termékek szállítását, CarryAll Hungary Kft. (ugyfelszolgalat@carryall.hu) szállító céggel végezzük a kellemetlenségek elkerülése végett. Az MPL szállítmányozó cég kiszállítása esetében a várható szállítási idő (amennyiben a megrendelt termék raktáron van) elérheti a 9-14 munkanapot is. A termék fuvardíja függ a termék nagyságától, árumennyiségtől és a szállítási cím távolságától. Kiszállítás a megadott szállítási címre főszabály szerint a főbejáratig / kapuig történik, az emeletre való felhordást a szállítási költség nem tartalmazza! A termék beérkezéséről, átvételéről kollégáink folyamatosan tájékoztatják Önt a megadott telefonszámon vagy e-mail címen. Fizetési lehetőség, Készpénzzel, Banki előre utalással, vagy Bankkártyával / az oldalunkon OTP Simple felületen/. A számlát minden esetben a termékkel együtt kapja meg a vásárló.

RENDELÉS LEMONDÁSA, ELÁLLÁS: Ezeket az Általános Szerződési Feltételekben rögzítettük (ÁSZF).

HÁZHOZ SZÁLLÍTÁSNÁL MIRE KELL FIGYELNI!

Nem szeretnénk vásárlóinknak kellemetlenséget és bosszúságot okozni, ezért szeretnénk tájékoztatni önöket, hogy a megrendelt termék átvételénél mire figyeljenek!
Feladás előtt Cégünk meggyőződik arról, hogy a termék sértetlen és minden tartozéka a csomagban van, csak ez után kerül a szállító cég kezébe. Innentől kezdve az Ő kezükben van, hogy a legnagyobb gonddal és körültekintéssel szállítsák ki a kívánt helyre. Sértetlen csomagolás esetén is lehet a kartondobozban, szállítás közben megsérült termék. A szállító cégeknek gyorsan kell dolgozniuk, hogy minél több árut eljuthassanak céljukhoz. Jellemző az "itt írják alá és már rohanok is tovább" mentalitás. Ne essenek bele ebbe a csapdába! Minden esetben a futár jelenlétében bontsák ki a csomagot és győződjenek meg a sértetlenségéről, hiánytalan meglétéről. Ha ugyanis hagyjuk, hogy a futár elmenjen és utána bontjuk ki a csomagot, akkor bizonyíthatatlan, hogy nem a távozása után sérült, tört el!
Sajnos ebben az esetben a vásárló az akinek a kárt viselnie kell! Ezért nagyon fontos, hogy minden esetben a futár jelenlétében bontsuk ki a megrendelt csomagot!